午夜视频成人午夜视频成人結構
在發展中國家,午夜视频成人廣泛用於煉油,長輸管道,化工,造紙,製藥,水利,電力,市政,鋼鐵等行業,在國民經濟中發揮著重要作用。

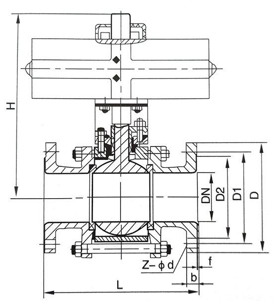
手動午夜视频成人午夜视频成人結構

氣動午夜视频成人午夜视频成人結構
午夜视频成人的閥盤是帶有圓形通道的球體,該通道圍繞垂直於該通道的軸旋轉,並且球與閥杆一起旋轉以達到打開或關閉通道的目的。僅在90度旋轉操作和小旋轉扭矩的情況下,午夜视频成人才能緊密關閉。根據工作條件的要求,可以組裝不同的驅動裝置以形成具有不同控製方式的午夜视频成人,例如電動午夜视频成人,氣動午夜视频成人,液壓午夜视频成人等。

球閥的工作原理
由於午夜视频成人通常用橡膠、尼龍和聚四氟乙烯作為閥座密封圈材料,因此它的使用溫度受到閥座密封圈材料的限製。
又由於午夜视频成人的閥座密封圈通常采用塑料製成,故在選擇午夜视频成人的結構和性能上,要考慮午夜视频成人的耐火和防火,特別是在石油、化工、冶金等部門,在易燃、易爆介質的設備和管路係統中使用午夜视频成人,更應注意耐火和防火。
通常,在雙位調節、密封性能嚴格、泥漿、磨損、縮口通道、啟閉動作迅速(1/4轉啟閉)、高壓截止(壓差大)、低噪聲、有氣穴和氣化現象、向大氣少量滲漏,操作力矩小、流體阻力小的管路係統中,推薦使用午夜视频成人。
午夜视频成人也適用於輕型結構、低壓截止(壓差小)、腐蝕性介質的管路係統中。在低溫(深冷)裝置和管路係統中也可選用午夜视频成人。
在冶金行業的氧氣管路係統中,需使用經過嚴格脫脂處理的午夜视频成人。在輸油管線和輸氣管線中的主管線需埋設在地下時,需使用全通徑焊接式午夜视频成人。在要求具有調節性能時,需選用帶V形開口的專用結構的午夜视频成人。在石油、石油化工、化工、電力、城市建設中,工作溫度在200度以上的管路係統可選用金屬對金屬密封的午夜视频成人。
午夜视频成人的優點:
1.午夜视频成人不受安裝方向的限製,介質的流動方向可以是任意的。流體阻力小,全通徑午夜视频成人基本上沒有流動阻力。
2.午夜视频成人有兩個密封麵。目前,各種塑料被廣泛用於午夜视频成人的密封表麵材料,具有良好的密封性能,可以實現完全密封。它也廣泛用於真空係統。
3.午夜视频成人適合頻繁操作,啟閉迅速輕便。它易於操作,並且可以快速打開和關閉。從完全打開到完全關閉隻需旋轉90度,這對於長距離控製很方便。
4,該午夜视频成人結構簡單,密封圈一般可動,拆裝方便。
5.當閥門完全打開或關閉時,球和閥座的密封表麵應與介質隔離。當介質通過時,閥密封麵不會被腐蝕。
6.它可用於多種應用,例如直徑範圍從幾毫米到幾米,可以施加從高真空到高壓的壓力。
7.午夜视频成人由於在打開和關閉過程中具有擦拭特性,因此可用於具有固體懸浮顆粒的介質。
8.午夜视频成人流體阻力小,無振動,噪音低。

